
In FreeCAD können ganz einfach von 3D Modellen abgeleitete Zeichnungen erstellt und bemaßt werden. In diesem Artikel möchte ich demonstrieren, wie die Bemaßung der Zeichnungen, welche mit der FreeCAD Workbench „TechDraw“ erstellt wurden, funktioniert. Außerdem gebe ich euch ein paar Tipps auf den Weg um den Prozess für euch möglichst reibungslos zu gestalten.
Freut euch auf eine illustrierte Anleitung, die Ihr schnell verstehen und selbst in euren Projekten umsetzen könnt.
Einführung
Zur Erstellung von Bemaßungen in FreeCAD wird erst die zu bemaßende Geometrie auf der Zeichnungsseite ausgewählt und anschließend die Bemaßung erstellt. Diese Vorgehensweise bleibt bei allen Bemaßungen gleich. Dabei ist der Bemaßungswert in der Zeichnung an die Abmessung des 3D Modells gebunden.
Zu aller erst sollte die Zeichnung mit den Projektionen geöffnet sein. Außerdem sollte die FreeCAD Workbench „TechDraw“ ausgewählt sein.

Schritt 1: Geometrie auswählen
Je nach Bemaßungstyp werden unterschiedliche Zeichnungsobjekte ausgewählt. Für viele Bemaßungen müssen mehrere Geometrieobjekte ausgewählt werden.
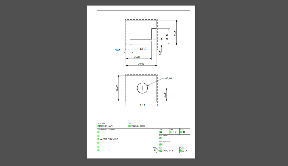
In der Zeichnung ausgewählte Geometrie wird farblich grün hervorgehoben

| Bemaßungstyp | Auswahl |
|---|---|
| Zwei Punkte oder eine Linie. | |
| Zwei Punkte oder eine Linie. | |
| Zwei Punkte oder eine Linie. | |
| Kreis oder Kreisbogen. | |
| Kreis oder Kreisbogen. | |
| Zwei sich schneidende Linien. | |
| Drei Punkte. |
Schritt 2: Bemaßung erstellen
Bei ausgewählter Geometrie wird die gewünschte Bemaßung über die Schaltflächen erstellt.
Die Bemaßung kann über ein Ziehen (Klick halten) verschoben werden. Normalerweise wir die erste Bemaßung in einem Abstand von 10 mm erstellt und alle weiteren in Abständen von 7 mm.
Alle Bemaßungen werden in der Zeichnung einheitenlos angezeigt. Deshalb ist eine Annotation zu den Einheiten der Bemaßungen auf der Zeichnung wichtig.

Schritt 3: Bemaßungswert ändern
Um den Bemaßungswert zu verändert, muss das 3D Modell modifiziert werden. Da es sich hier um eine Zeichnungsableitung handelt, ist die Zeichnung und mit Ihr auch die Bemaßungen an das 3D Modell gebunden. Sobald die Abmessungen im 3D Modell modifiziert wurden, ändert sich die Bemaßung in der Zeichnung.
Sollte die Zeichnung nicht automatisch aktualisiert werden, kann die Seite manuell mit der Schaltfläche
aktualisiert werden.

FreeCAD Tipps & Tricks
Tipp 1: Abstände der Bemaßungen
Normalerweise wird immer die erste Abstandsbemaßung (horizontal oder vertikal) in einem Abstand von 10 mm von der Werkstückgeometrie eingetragen. Alle folgenden paralellen Abstandsbemaßungen werden in einem Abstand von je 7 mm eingetragen.
FreeCAD Tipps & Tricks
Tipp 2: Überschneidungen von Bemaßungslinien
Es sollten sich so wenige Bemaßungslienien wie möglich kreuzen. Optimalerweise überschneidet sich keine Bemaßungslinie. Das hilft dabei die technische Zeichnung lesbar zu halten. Der Hersteller deiner Werkstücke wird dir dafür danken.

Geschafft!
Solltest du bis hier gekommen sein, hast du es geschafft. Genieße deinen Sieg.